Mašinsko područje rada Tehničke škole iz Smedereva

Detaljne informacije o svim mašinskim obrazovnim profilima, informacije o upisu, aktuelnim zanimanjima, učenički kutak...

Fascikle

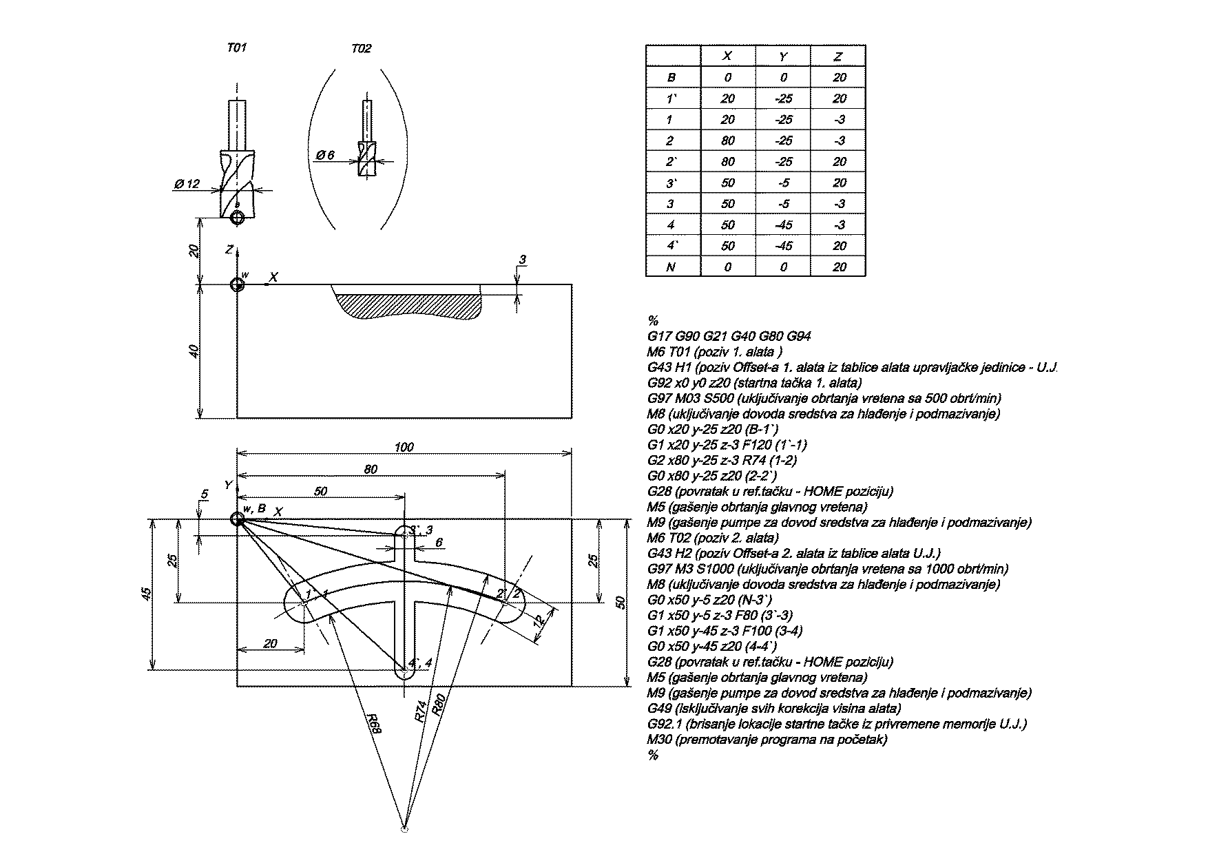
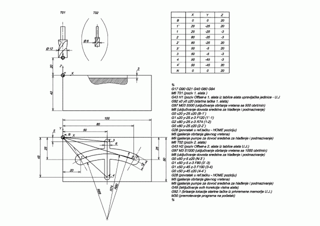
Primer izrade plana rezanja i programa - CNC glodanje.gif

Preuzimanje (43 KB) | created 26 Nov, 2008

Primer izrade plana rezanja i programa (NC koda - G koda) za deo manjeg stepena geometrijske složenosti koji se obrađuje sa 2 alata

Primer izrade plana rezanja i programa - CNC glodanje.gif, 43 KB

parent

 
Accessible and Valid XHTML 1.0 Strict and CSS
Powered by LifeType - Design by BalearWeb